Брусоград
Телефон
+7 915 915 32 20 9-20 ежедневно

Обратный звонок
Оставьте номер телефона и мы перезвоним в течении 30 минут.

+7 915 915 32 20
10:00 до 19:00
без выходных

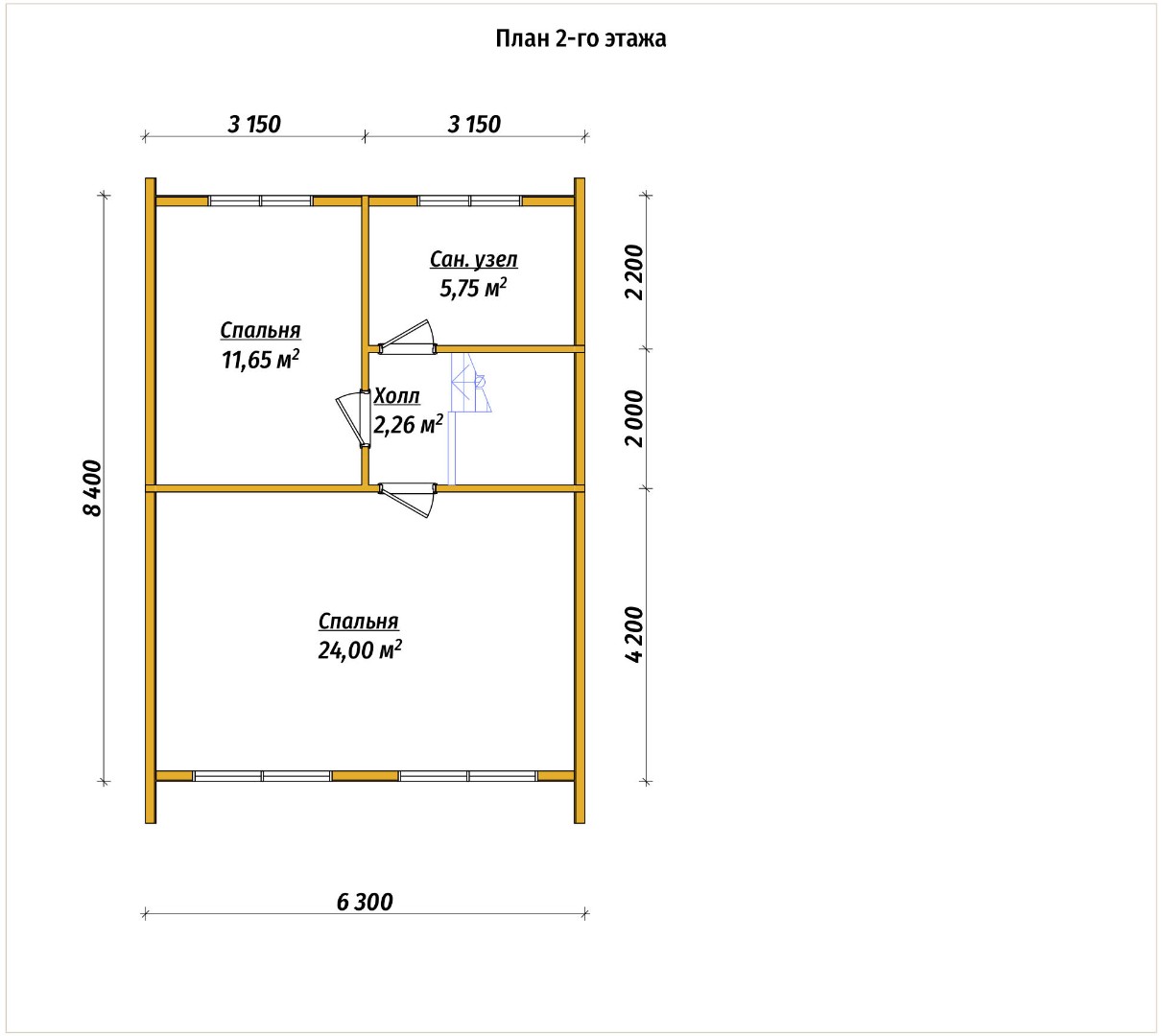
Проект Барнхауса Барн-5

Проект Барн-5
Полутораэтажный дом
Размеры: 8х13
Площадь: 114 м2
Санузлов:
Комнат:

Особенности:

Котельная Терраса
Стеновой комплект
Брус естественной влажности
150х150 150х150 По запросу
145х145 145х145 По запросу
145х195 145х195 По запросу
Сухой брус камерной сушки
150х150 150х150 По запросу
145х145 145х145 По запросу
145х195 145х195 По запросу
Фундамент
Свой фундамент Свой фундамент
Ленточный Ленточный По запросу
Свайно винтовой Свайно винтовой По запросу
ЖБС ЖБС По запросу
Кровля
Рубероид Рубероид
Металлочерепица Металлочерепица По запросу
Ондулин Ондулин По запросу
Мягкая кровля Мягкая кровля По запросу
Дополнительно
Цена:
0 р.
Заказать
Хотите внести изменения в проект?
Вы можете внести любые изменения в проект дома.
Сделаем расчет в течение одного дня.
Комплектация
Доставка
Фундамент (на выбор) в стоимость не входит, рассчитывается отдельно:
Свайно-Винтовой По запросу
Забивной ЖБ По запросу
Ленточный По запросу
Домокомплект:
Обвязка каркаса: брус 150*200 мм
Стойки каркаса: из строганной доски камерной сушки (14-18% влажность), 1 сорта, 150*50 мм:
Шаг стоек: не более 580 мм, с использованием усиленной крепежной системы и дополнительной защитой каркаса от «мостиков холода»
Монтаж горизонтального бруска: 50*50 мм под дополнительное перекрестное утепление стен изнутри
Кровля:
Стропильная конструкция: Нестроганая доска сечением 40х150 мм (естественной влажности), с шагом укладки 590 мм.
Ветро-влагозащита: Ветрозащитная мембрана «Ондутис А-120 Смарт».
Контробрешётка: Контробрешётка выполняется из нестроганого бруска сечением 40х50 мм (естественной влажности).
Обрешетка: Обрешётка выполняется из обрезной доски сечением 20х100 мм (естественной влажности).
Фронтоны: На каркас фронтонов монтируется ветрозащитная мембрана «Ондутис А-100 Смарт», далее через контррейку - нестроганая доска сечением 20х50 мм (естественной влажности), фронтоны обшиваются имитацией бруса сечением 17х140 мм (камерной сушки). Во фронтоны дома устанавливаются вентиляционные решетки (предотвращают образование конденсата). В фронтоне, для входа на чердачное помещение, устанавливается вентилируемая дверь. Размеры по дверной коробке - 0,7х0,9 м.
Кровельное покрытие: Кликфальц
Окна, двери:
Окна: Отсутствуют.
Двери: Отсутствуют.
Входная дверь: Отсутствует.
Доставка и сборка дома:
Доставка дома: Доставка комплекта дома в радиусе 500 км от нашей производственной базы, расположенной в г. Кострома, осуществляется бесплатно, сверх 500 км рассчитывается из расчета 95 руб/км за одну машину. Расчёт доставки онлайн. Точную стоимость доставки уточнять у менеджеров. Мы работаем от Мурманска до Сочи.
Сборка дома: В стоимость включены материалы и сборка на участке заказчика.

Как мы работаем

1. Выбор проекта, проектирование и расчет

Подбираете подходящий проект и при необходимости вносим изменения во внешний вид и планировку. Или присылаете свой проект на расчет стоимости.

2. Заключение договора

Подписываем договор прямо на вашем участке. Оценим пути подъезда и особенности рельефа. Окончательную цену строительства фиксируем в договоре.

3. Подготовка и производство материалов

1-2 недели в зависимости от сложности, размера и материалов дома.

4. Доставка и сборка

Доставка и разгрузка производится под личным контролем директора компании. Сборка дома в среднем занимает от 10 до 30 дней.

5. Усадка

Время усадки дома занимает 6-12 месяцев (естественный процесс древесины, пренебрегать им нельзя).

6. Отделка и ввод в эксплуатацию

Завершаем строительство дома под ключ: установка окон, дверей, инженерных систем и т.д.

Похожие проекты
Карта реализованных проектов
Посмотреть на карте

современные загородные дома

Мы делаем акцент на высоком качестве строительства и строгом соблюдении сроков, чтобы каждый наш клиент был доволен сотрудничеством и мог в полной мере наслаждаться загородной жизнью и уютом в домах, построенных нашей компанией.

О компании

Есть вопросы?

Заполните форму

Менеджер свяжется с вами в течение 30 минут
Нажимая кнопку "Отправить", я даю
согласие на обработку своих персональных данных.
Или звоните:
+7 915 915 32 20
Мессенджеры:
Электронная почта:
Вверх

Cookie файлы

На нашем сайте используются cookie–файлы, в том числе сервисов веб–аналитики. Используя сайт, вы соглашаетесь на обработку персональных данных при помощи cookie–файлов. Подробнее об обработке персональных данных вы можете узнать в Политике конфиденциальности.