Брусоград
Телефон
+7 915 915 32 20 9-20 ежедневно

Обратный звонок
Оставьте номер телефона и мы перезвоним в течении 30 минут.

+7 915 915 32 20
10:00 до 19:00
без выходных

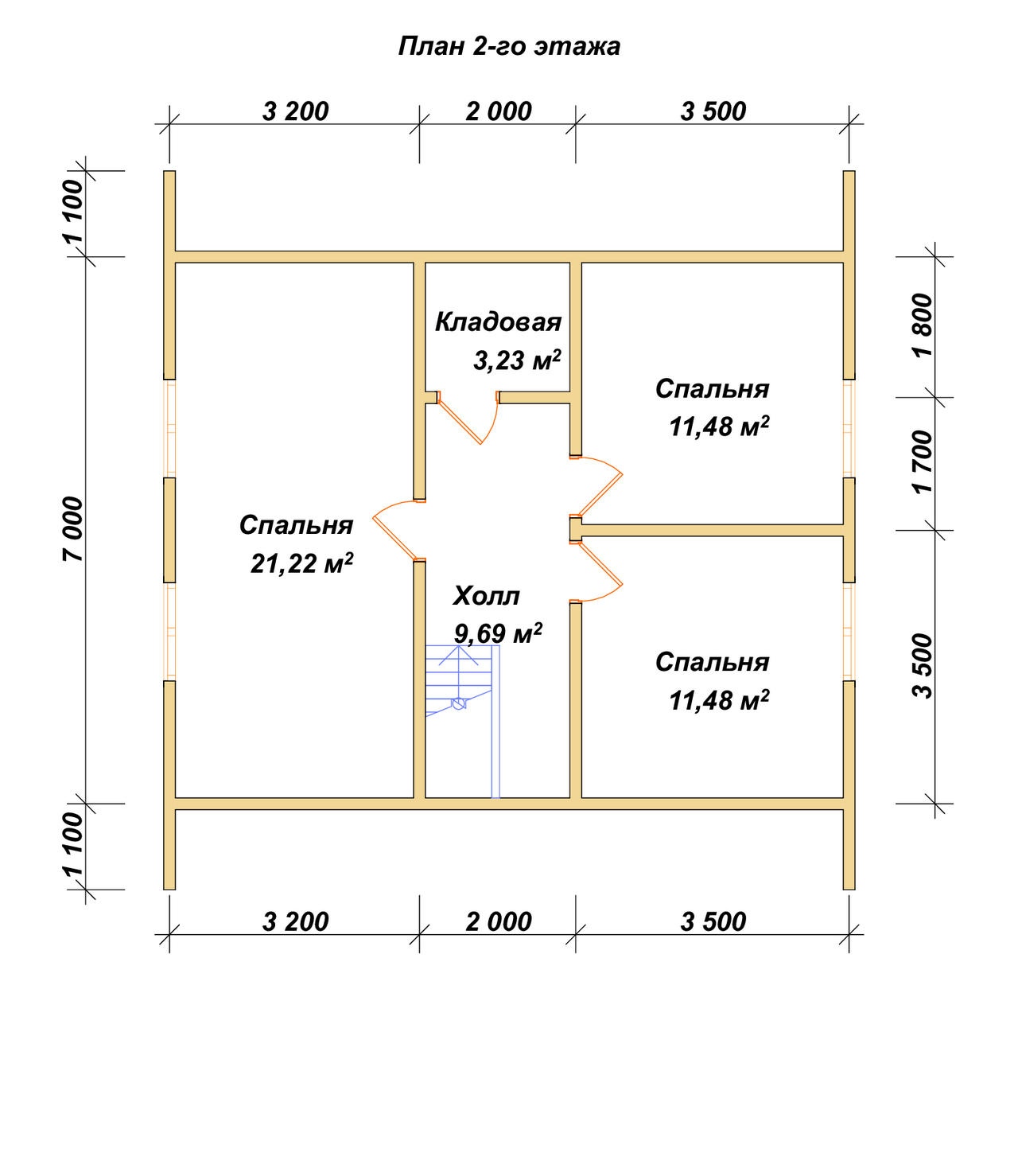
Проект 9х10 метров, площадью 123 м2

Планировки
Проект П-107
Дом с мансардой
Размеры: 9х10
Площадь: 123 м2
Санузлов: Один
Комнат: 5

Особенности:

Котельная Терраса
Стеновой комплект
Брус естественной влажности
150х150 150х150 По запросу
145х145 145х145 По запросу
145х195 145х195 По запросу
Сухой брус камерной сушки
150х150 150х150 По запросу
145х145 145х145 По запросу
145х195 145х195 По запросу
Фундамент
Свой фундамент Свой фундамент
Ленточный Ленточный По запросу
Свайно винтовой Свайно винтовой По запросу
ЖБС ЖБС По запросу
Кровля
Рубероид Рубероид
Металлочерепица Металлочерепица По запросу
Ондулин Ондулин По запросу
Мягкая кровля Мягкая кровля По запросу
Дополнительно
Цена:
0 р.
Заказать
Хотите внести изменения в проект?
Вы можете внести любые изменения в проект дома.
Сделаем расчет в течение одного дня.
Комплектация
Доставка
Фундамент (на выбор) в стоимость не входит, рассчитывается отдельно:
Опорно-столбчатый
1500 руб за 1-у опору
Свайно-Винтовой
5200 руб за 1-у сваю
Забивной ЖБ
5500 руб за 1-у сваю
Ленточный
19 000 руб за 1 м3
Основание дома:
Обвязка основания: Двойная, выполнена из нестроганого бруса сечением 150х150 мм (естественной влажности) и из бруса сечением 100х150 мм на ребро (естественной влажности).
Лаги пола 1-го этажа: В обвязку основания устанавливаются лаги пола первого этажа, из нестроганой доски сечением 50х200 мм (естественной влажности), с шагом укладки 590 мм. Крепятся на опору бруса.
Черновой пол: Нестроганая доска сечением 20х100 мм (естественной влажности).
Антисептирование: Нижняя обвязка основания сруба, черновые полы и лаги пола, пропитываются антисептическим составом.
Сруб первого этажа:
Внешние стены сруба: Строганый профилированный брус сечением 140 мм (ширина) х 140 мм (высота) - естественной влажности. С компенсационными пропилами. Брус изготовлен из древесины хвойных пород (ель, сосна). Брус с внешней стороны с закруглением, с внутренней стороны прямой. (По желанию заказчика можем изготовить брус с двух сторон прямой). Между венцами прокладывается льноджутовое полотно.
Перегородки сруба: Строганый профилированный брус сечением 90 мм (ширина) х 140 мм (высота) - естественной влажности. Брус изготовлен из древесины хвойных пород (ель, сосна). Брус с двух сторон прямой.
Сборка сруба: Сруб собирается на деревянные берёзовые нагеля круглой формы. (Нагель обеспечивает вертикальное скольжение бруса, препятствуя его горизонтальному смещению).
Угловые соединения сруба: Угловые соединения сруба собираются в «Теплый угол» (Такая сборка увеличивает жесткость конструкции и уменьшает тепловые потери в углах сруба).
Высота сруба 1-го этажа: Высота от лаг пола до потолочных балок: 2,6 м (+- 5 см), 19 рядов бруса.
Кровля:
Крыша: Согласно проекту дома (двухскатная, ломаная, ассиметричная). Высота конька кровли согласно проекту дома (1.7 м, 2.5 м, 3 м)
Стропильная конструкция: Нестроганая доска сечением 40х150 мм (естественной влажности), с шагом укладки 590 мм.
Ветро-влагозащита: Ветрозащитная мембрана «Ондутис А-120 Смарт».
Контробрешётка: Контробрешётка выполняется из нестроганого бруска сечением 40х50 мм (естественной влажности).
Обрешетка: Обрешётка выполняется из обрезной доски сечением 20х100 мм (естественной влажности).
Фронтоны: На каркас фронтонов монтируется ветрозащитная мембрана «Ондутис А-100 Смарт», далее через контррейку - нестроганая доска сечением 20х50 мм (естественной влажности), фронтоны обшиваются имитацией бруса сечением 17х140 мм (камерной сушки). Во фронтоны дома устанавливаются вентиляционные решетки (предотвращают образование конденсата). В фронтоне, для входа на чердачное помещение, устанавливается вентилируемая дверь. Размеры по дверной коробке - 0,7х0,9 м.
Кровельное покрытие: В базовой комплектации кровельное покрытие - рубероид. За дополнительную плату можно установить металлочерепицу, ондулин, или мягкую кровлю.
Окна, двери:
Окна: Отсутствуют. В брусовой части конструкции, выполняется 2-ва ряда перевязки из профилированного бруса.
Двери: Отсутствуют. В брусовой части конструкции, выполняется 3-ри ряда перевязки из профилированного бруса.
Входная дверь: Отсутствует. В брусовой части конструкции, выполняется 3-ри ряда перевязки из профилированного бруса.
Доставка и сборка дома:
Доставка дома: Доставка комплекта дома в радиусе 500 км от нашей производственной базы, расположенной в г. Пестово Новгородской области, осуществляется бесплатно, сверх 500 км рассчитывается из расчета 95 руб/км за одну машину. Расчёт доставки онлайн. Точную стоимость доставки уточнять у менеджеров. Мы работаем от Мурманска до Сочи.
Сборка дома: В стоимость включены материалы и сборка на участке заказчика.

Как мы работаем

1. Выбор проекта, проектирование и расчет

Подбираете подходящий проект и при необходимости вносим изменения во внешний вид и планировку. Или присылаете свой проект на расчет стоимости.

2. Заключение договора

Подписываем договор прямо на вашем участке. Оценим пути подъезда и особенности рельефа. Окончательную цену строительства фиксируем в договоре.

3. Подготовка и производство материалов

1-2 недели в зависимости от сложности, размера и материалов дома.

4. Доставка и сборка

Доставка и разгрузка производится под личным контролем директора компании. Сборка дома в среднем занимает от 10 до 30 дней.

5. Усадка

Время усадки дома занимает 6-12 месяцев (естественный процесс древесины, пренебрегать им нельзя).

6. Отделка и ввод в эксплуатацию

Завершаем строительство дома под ключ: установка окон, дверей, инженерных систем и т.д.

Похожие проекты
Карта реализованных проектов
Посмотреть на карте

современные загородные дома

Мы делаем акцент на высоком качестве строительства и строгом соблюдении сроков, чтобы каждый наш клиент был доволен сотрудничеством и мог в полной мере наслаждаться загородной жизнью и уютом в домах, построенных нашей компанией.

О компании

Есть вопросы?

Заполните форму

Менеджер свяжется с вами в течение 30 минут
Нажимая кнопку "Отправить", я даю
согласие на обработку своих персональных данных.
Или звоните:
+7 915 915 32 20
Мессенджеры:
Электронная почта:
Вверх

Cookie файлы

На нашем сайте используются cookie–файлы, в том числе сервисов веб–аналитики. Используя сайт, вы соглашаетесь на обработку персональных данных при помощи cookie–файлов. Подробнее об обработке персональных данных вы можете узнать в Политике конфиденциальности.